













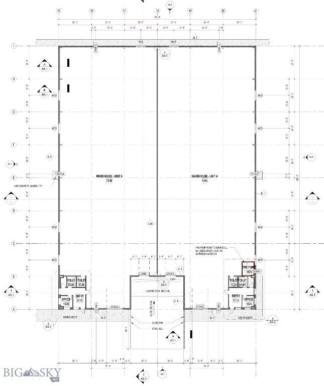
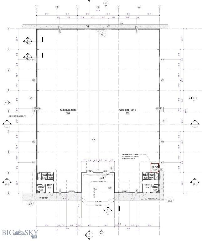
Construction Started!!! Discover this ideal location for your industrial business needs. This strategic location provides excellent access to I-90 and Highway 191, which makes this a prime location for logistics and distribution. This new 30,000 sf warehouse building that will consist of 2 secure loading docks, 2 (12'x14') overhead doors, 6-man doors entrances, small office space, fire suppression, 20' to 25' ceiling height, and 3 phase power (400-amp service). Two 15,000 sf spaced could be leased as well. ESFR sprinkler system designed to protect 20’ high storage of Class IV commodities and Group A plastics on racks or on piles. Anticipated completion is 2/15/2026.