








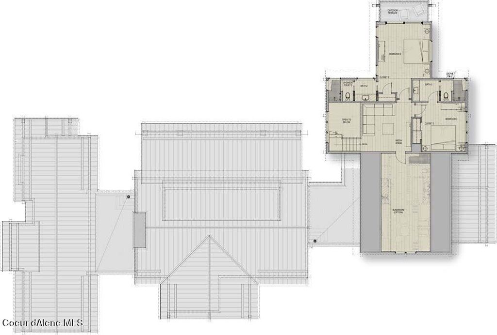
Estate 42 is a contemporary custom-built home located off Kettle Ridge at Gozzer Ranch with views of the second fairway. This home offers 4 bedrooms and 4.5 baths, an outdoor underground pool, outdoor spa, beautiful master suite, and a golf cart garage. A barbecue patio and covered lounging patio allow for flexible indoor/outdoor living. This home is estimated to be complete come April 2023.